This preloved home is offered for sale in need of a refurbishment from its.
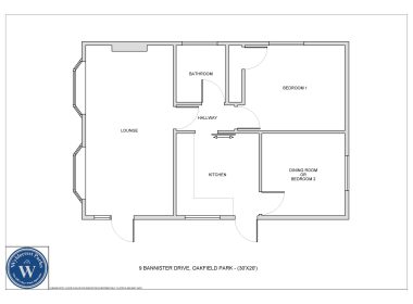
The home has a great layout with a cross lounge benefiting from plenty of natural light. An electric fire with a surround makes a great feature. The kitchen area has a good range of base and eye level units and appliances, mainly freestanding, along with a built in storage cupboard. Off of the kitchen there is a good sized room that could be used for a dining room, study or second bedroom. Leading out from the kitchen in to the hallway, the master bedroom is at the rear of the home. A family bathroom with a shower over the bath is also off the hallway
The home is in a great quiet location on the park and priced to reflect the works required.
Externally, there is an enclosed block paved area to the front of the home which is could provide off road parking and still have a plenty of outside space to enjoy.









